












CoeLux® 45 LC
CoeLux 45 LC
The perfection of the CoeLux sun in the smallest window of the HE family.
CoeLux 45 LC is the smallest system in the HE family. A window of approximately 0.5 m², which can be installed on the ceiling and faithfully reproduces a blue sky and a realistic defined sun.
The reproduction of natural light and the visual appearance of the sky and the sun, typical of the HE family, are concentrated in the size of the system, perfect in architectural contexts with medium heights. In the space, a 45-degree beam of light emitted by the system projects a warm light spot with defined contours, enhancing the shadows and volumes of the objects.
The CoeLux 45 LC system is also available in the Sun & Moon version: a spectacular night-time scenario that reconnects us with the first celestial object we can see clearly with the naked eye: the moon.
Specifications
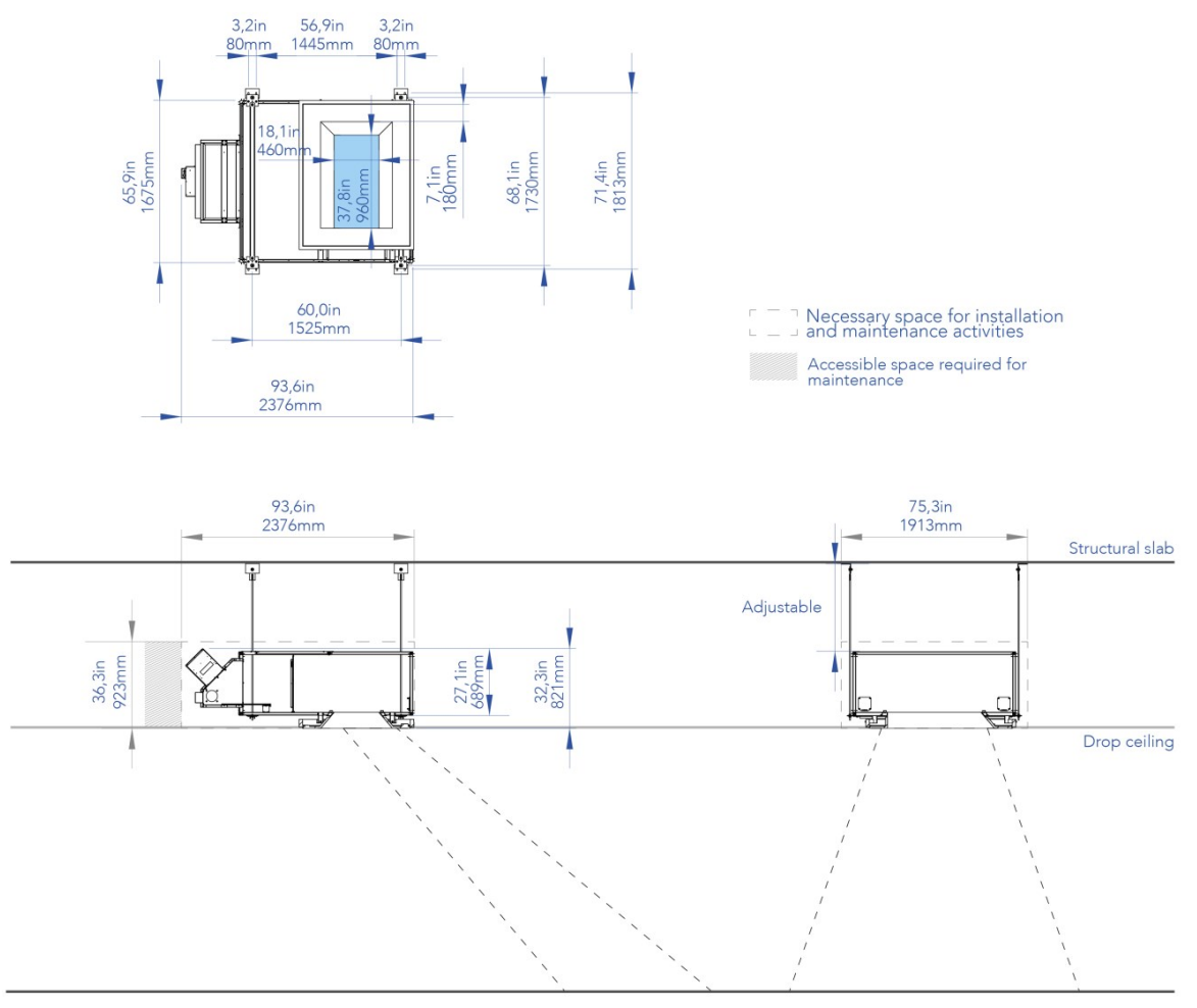
| Device dimensions | 2376*1675*h821mm |
| Sky-light size | 960*h460mm |
| Frame visible dimension | 1458*1095*164 mm |
| Frame color | White |
| Light source | LED 300W / 4200 lm |
| Min/max operating temperature | -10/40°C |
| CCT CRI (Ra) | >92 |
| CCT of transmitted beam | 3900K |
| Lumen maintenance (L90B10) | > 20000h |
| Light beam angle | 45 |
| IP grade | IP20 |




