








CoeLux® 45 HC
CoeLux® 45 HC
CoeLux® 45 HC is the largest of the CoeLux systems; a window of approximately 1.5 m2 that can be installed on the ceiling, faithfully reproducing a blue sky and a bright sun. This advanced high-tech system is the first CoeLux product on the market since 2014, which recreates a feeling of depth and infinite space.
A 45-degree beam of light is emitted by the system and, passing through the CoeLux panel, projects a warm spotlight with defined outlines.
A diffused light with a strong blue component, similar to the luminous effect of the sky, slightly colours the shadows inside the space.
The CoeLux 45 HC system is also available in the Sun & Moon version: a spectacular night-time scenario that reconnects us with the first celestial object we can see clearly with the naked eye: the moon.
Specifications
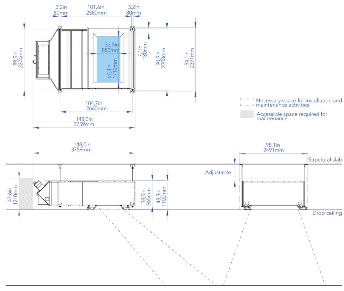
| Device dimensions | 3759*2274*h1100mm |
| Sky-light size | 1710*h850mm |
| Frame visible dimension | 2208*1485*164 mm |
| Frame color | White |
| Light source | LED 300W / 4100 lm |
| Min/max operating temperature | -10/40°C |
| CCT CRI (Ra) | >92 |
| CCT of transmitted beam | 3900K |
| Lumen maintenance (L90B10) | >20000h |
| Light beam angle | 45 |
| IP grade | IP20 |



